CAD素材.comは無料ダウンロードサイトです
広告と一部有料データの収益により、高品質データを無料で提供しています
ぜひコメントお願いします。「役立った」の一言が、個人運営の励みになります
U形側溝グレーチング CADデータダウンロード
U形側溝用グレーチングの一般汎用図の平面図、断面図データです。特定の製品のデータではありませんので、メーカー決定前の検討図や建築図でご利用ください

下記より無料ダウンロード可能です
グレーチングと合わせて使えるU字溝・蓋 CADデータはこちら
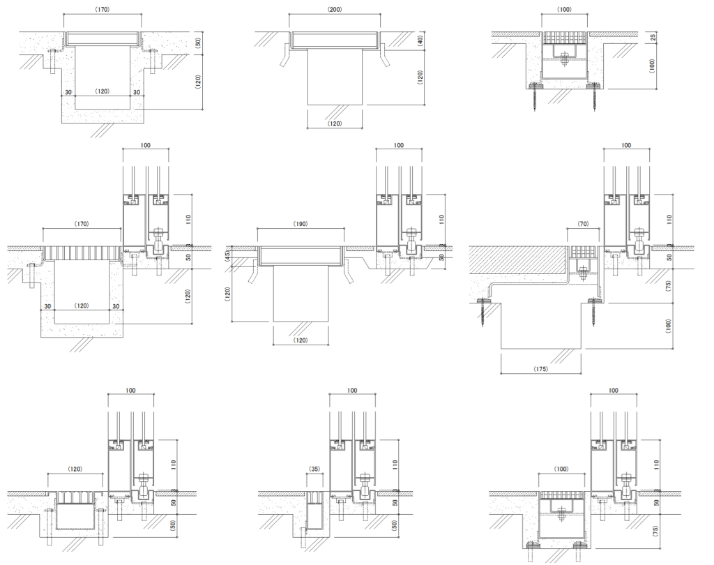
エントランスグレーチング・排水ユニット CADデータダウンロード
エントランスなどで使用される排水ユニット、グレーチングの一般的な納まり事例集です

下記より無料ダウンロード可能です
掲載情報一覧 グレーチングの種類
- 落ちふた式U形側溝グレーチング蓋
- 1種 呼び名:250、300、400、500
- 3種 呼び名:250、300、400、500
- U形側溝グレーチング蓋(ボルト固定式)
- 呼び名:250、300、400、500
- タグタイルグレーチング
- 呼び名:250、300、400、500
- U形側溝グレーチング蓋 つば付き
- 標準(粗目):150、180、200、240、300、360、450
- 細目:150、180、200、240、300、360、450
- 排水ユニット+SUSグレーチング(オーダー製品・規格製品)
- 排水ユニット+SUSグレーチング 自動ドア取り合い
- 現場打溝+SUSグレーチング 自動ドア取り合い
- 排水ユニット+SUSスリットグレーチング 自動ドア取り合い
- 排水ユニット+SUSグレーチング 自動ドア、舗装インターロッキング取合い
同義語リスト:U型側溝、上蓋式U形側溝、落ちぶた式U形側溝、落ち蓋式U形側溝
CADデータについて
バージョンはAutoCAD2004dwg・2004dxf・jwwです
本データは一般的な製品の寸法を参考に作成した汎用図です。特定のメーカー製品を正確に再現したものではありません。また寸法を調整したり詳細を省略するなど汎用性を高めるための簡易図ですので、シビアな検討では実製品のカタログやサイズをご確認ください。
このデータが良かったら、ぜひ一言でもコメントお願いします。とても励みになります


コメント