CAD素材.comは無料ダウンロードサイトです。広告の収益と一部の有料データにより運営を行っております。業界10年以上の管理人がこだわり抜いて制作した高品質なデータを提供しています。
お役に立てたらコメント頂けると嬉しいです。「役立った」の一言でも個人運営の励みとなります
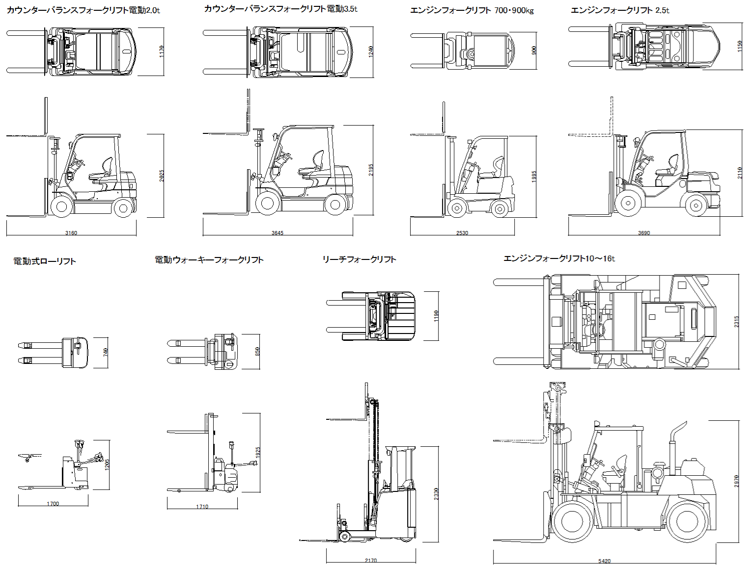
フォークリフト CADデータダウンロード
カウンターバランスタイプ、エンジンタイプフォークリフト、電動フォークリフトの平面、立面の図面データです

下記より無料ダウンロード可能です
フォークリフト掲載データ情報一覧
- カウンターバランスフォークリフト2.0t(外形参考:トヨタL&F)
- カウンターバランスフォークリフト3.5t(外形参考:トヨタL&F)
- 電動ローリフト(外形参考:トヨタL&F)
- ウォーキーフォークリフト(外形参考:トヨタL&F)
- リーチフォークリフト(外形参考:トヨタL&F)
- エンジンフォークリフト700kg、900kg(外形参考:トヨタL&F)
- エンジンフォークリフト2.5t(外形参考:トヨタL&F)
- エンジンフォークリフト10~16t(外形参考:トヨタL&F)
同義語リスト:重機、建機、リーチ式フォークリフト、プラッター、エンジンタイプ
CADデータについて
バージョンはAutoCAD2004dwg・2004dxf・jwwです
カタログを参考にしておりますがあくまで参考寸法ですので、詳細検討ではご使用になる機器の仕様を必ずご確認ください
「役に立った」の一言でもコメント頂けると、個人運営の励みになります。リクエストもどうぞ

コメント
久しぶりに拝見しました。施工・安全衛生計画書を作成するのに使わせていただきます。
ありがとうございます。
ご利用ありがとうございます。ご要望もありましたら、お気軽にお知らせください。
装置計画図に使用させていただきます。
ありがとうございました。
ご利用ありがとうございます。装置計画図作成のお役に立てたなら幸いです
物流倉庫の配置図作成に使用させていただきます。
ありがとうございます。
物流倉庫の配置図作成にご活用いただけて何よりです。ありがとうございます
搬入計画図に使用させていただきます。
ありがとうございました。
ご丁寧にありがとうございます。搬入計画図にご使用していただけるとのこと、とても嬉しいです
施工図の参考資料として利用させていただきます。きれいなCAD資料をありがとうございます。
施工図の作業に少しでもお役立ちできたとのことで、とても励みになります。これからも使いやすい資料を心がけてまいります。
図面に利用させていただきました。ありがとうございます。
図面でご利用いただきありがとうございます。他にもCAD素材.comをご活用いただけると幸いです
工場L/O検討に使わせて頂きます。ありがとうございます。
ご利用いただきありがとうございます。工場レイアウト業務のお役に立てる事を願っています
構内図レイアウト作成に使わせて頂きます。CAD図ありがとうございます。助かります。
レイアウト作成業務のお役に立てたようで光栄です。また、CAD素材.comをご利用して頂ければうれしいです
あざーっす
ご利用いただきありがとうございます。今後もCAD素材.comを宜しくお願いいたします
設備撤去工事の施工計画で使用させていただきます。
有難う御座います。
ダウンロードいただき誠にありがとうございます。施工計画のお役に立てたようで幸いです
倉庫計画に使用させていただきます。
ありがとうございます。
ダウンロード、コメントありがとうございます。倉庫計画業務のお役に立てたようでうれしいです
工場の設置図に使用させて頂きました。
ありがとうございます。
工場の図面にご活用いただけるとの事うれしく思います。ご利用いただきありがとうございました
分かりやすいデザインでいつも大変助かっております。
電動フォークだけでなく、エンジンタイプのフォークリフトもぜひラインナップいただけると嬉しいです。
ご検討お願い致します。
いつもご利用ありがとうございます。エンジンタイプのフォークリフト承知いたしました。現在、リクエストが立て込んでいるので、少しお時間をいただきます。
客先 提出用構想図に使用させていただきます。
ありがとうございます。
構想図にお役立ていただけるとの事ありがとうございます。業務の効率化に繋がればうれしいです