CAD素材.comは無料ダウンロードサイトです
広告と一部有料データの収益により、高品質データを無料で提供しています
ぜひコメントお願いします。「役立った」の一言が、個人運営の励みになります
天井納まり標準詳細図 CADデータダウンロード
建築工事標準詳細図をベースに現場に即した納まりに編集し、よくある納まりを追加した標準納まり図集です
下記より無料ダウンロード可能です
天井下地(LGS)CADデータはこちら
天井点検口 CADデータはこちら
建築工事標準詳細図(R4年版)一式 CADデータはこちら
掲載データ情報 天井納まりの種類一覧
- 天井一般
- 目透し工法(下地貼り無し・あり)
- 突き付け工法(下地貼り無し・あり)
- 天井開口補強納まり
- 狭天井納まり
- 折り上げ天井(折り下げ天井)
- 下がり壁と野縁が平行
- 下がり壁と野縁が直角
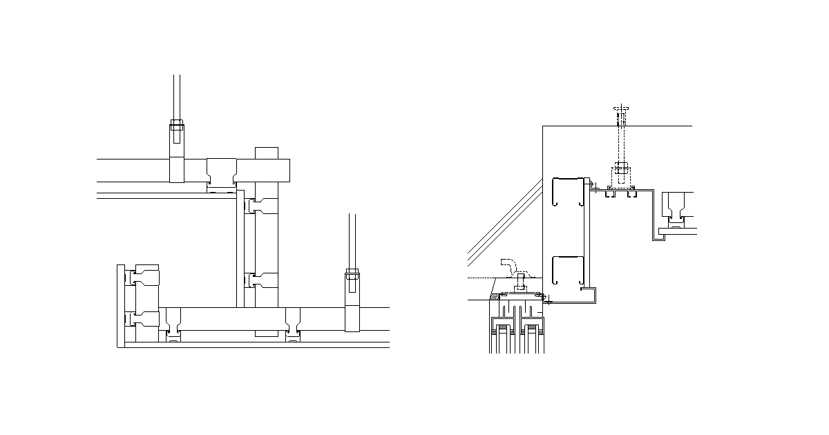
- 間接照明納まり
- 梁囲い納まり
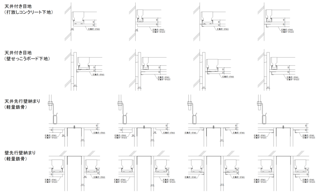
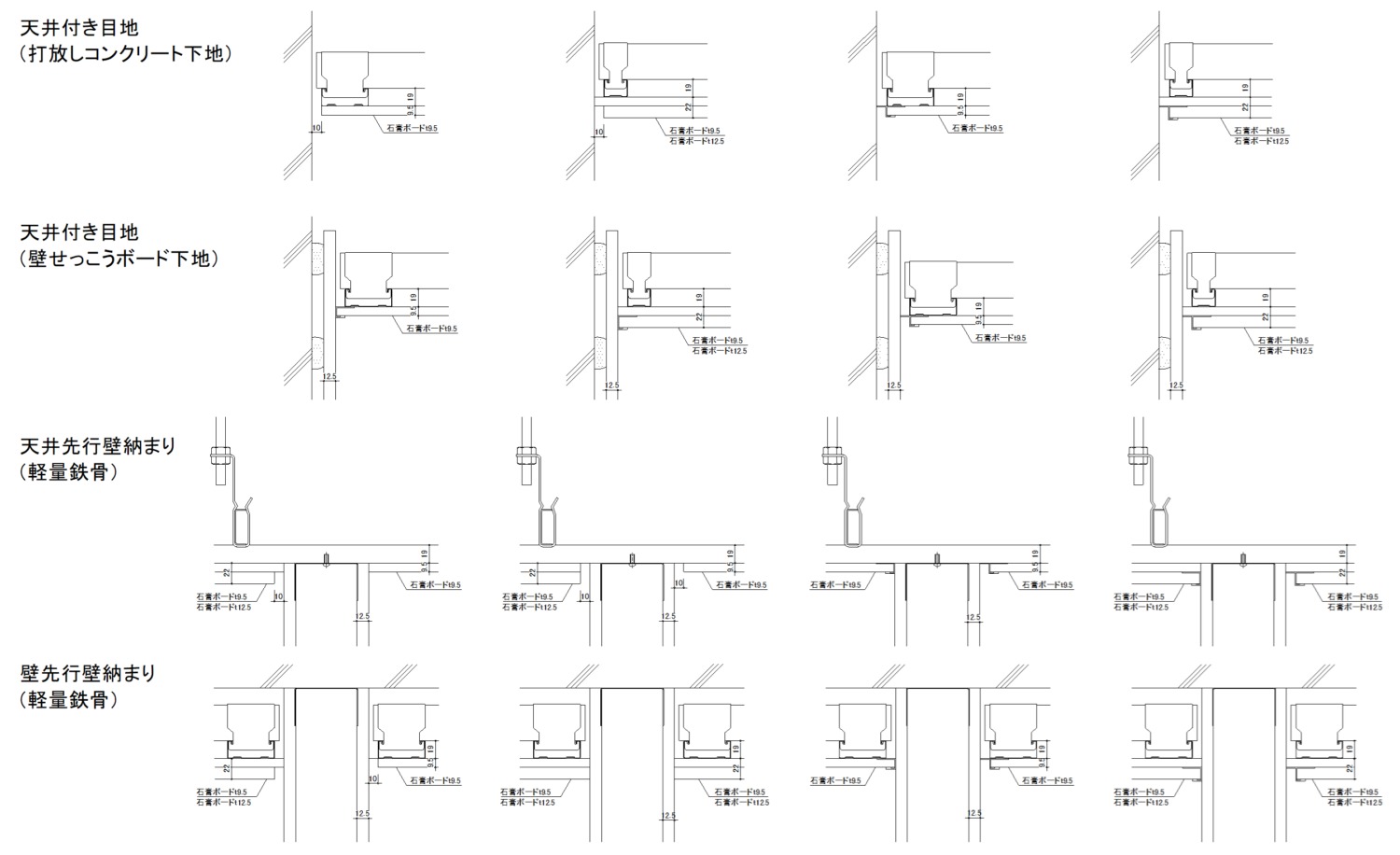
- 壁-天井取り合い詳細
- 打放しコンクリート下地+天井付き目地
- 壁せっこうボード下地+天井付き目地
- 軽量鉄骨壁下地+天井付き目地
- 軽量鉄骨壁下地+天井目地なし
- カーテンボックス、額縁-天井取り合い詳細
- 木製カーテンボックス
- 木製額縁
- スチールカーテンボックス(天井見切りあり、なし)
- アルミニウム製既製形材カーテンボックス 標準
- アルミニウム製既製形材カーテンボックス 折り上げ
- アルミニウム製既製形材カーテンボックス(壁ブラケット支持材、インサート)
- アルミニウム製額縁
納まりの注意事項や現場での検討事項など:
- 目透し工法で下地張り無しで建築工事標準図では9.5mmのように描かれていますが、あまり見ない納まりのためケイカル板としています
- 建築工事標準図では打ち放しコンクリート壁に廻り縁なしで直接天井ボードを当てる納まりですが、やむを得ない場合を除き採用にはご注意ください
- 建築工事標準図では天下壁の頂部ランナーを野縁受けに固定していますが、野縁に固定する位置関係が一般的です
- 折上げ天井の立上り部は、Mバーとクリップで構成せず、スタッド、角パイプ、木下地等を用いる事があります。また既製品のを利用する場合もあります
- 間接照明納まりでは、直角を保持するために斜め材の追加も検討が必要です
- 木製額縁やカーテンボックスでは、吊り用のStプレートに結露の懸念がある場合、木レンガをコンクリートボンドで固定しそこに止める場合もあります
- 木製カーテンボックスでは、ボックス上端に野縁流し、ハンガー材でビス止めする納まりを採用する場合もあります
CADデータについて
バージョンは2004dwg・2004dxf・jwwです
本データは建築工事標準詳細図(国土交通省)令和4年版のpdf資料を参考にベースとし、実際の施工現場での一般的な納まりを反映した参考用CADデータです。特定のメーカーまたは製品を正確に再現したものではありません
このデータが良かったら、ぜひ一言でもコメントお願いします。とても励みになります





コメント