CAD素材.comは無料ダウンロードサイトです
広告と一部有料データの収益により、高品質データを無料で提供しています
ぜひコメントお願いします。「役立った」の一言が、個人運営の励みになります
コンクリートポンプ車 CADデータダウンロード
コンクリートポンプ車(配管車・ブーム車)の平面図・立面図の図面データです


下記より無料ダウンロード可能です
軽トラ、2t、4t、10t、ダンプなどトラックCADデータはこちら
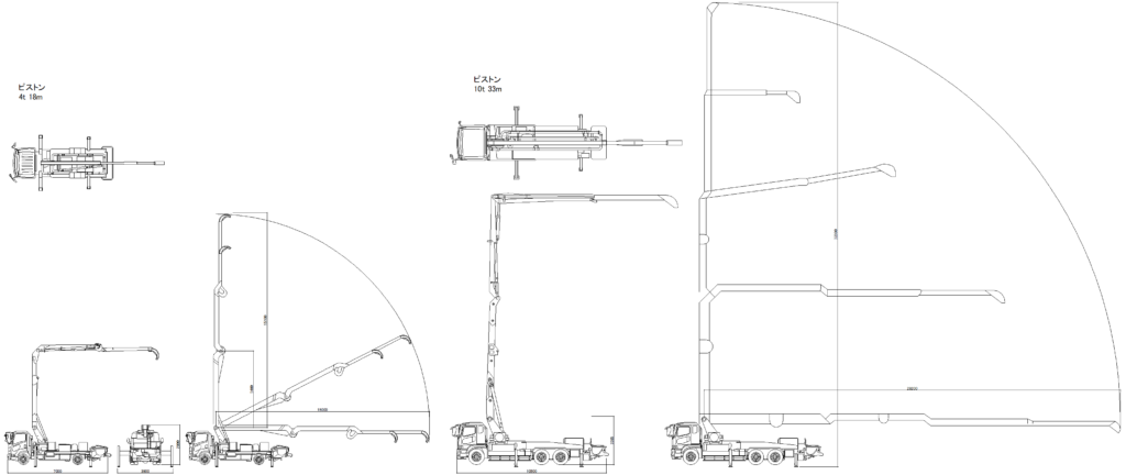
掲載データ情報 コンクリートポンプ車(配管車・ブーム車)の仕様
- 配管車 2t スクイズ式、ミニポンプ
- スクイズ式 14m 2t(作業範囲図あり)
- スクイズ式 17m 4t(作業範囲図あり)
- スクイズ式 25m 8t(作業範囲図あり)
- ピストン式 18m 4t(作業範囲図あり)
- ピストン式 33m 10tロングブーム(作業範囲図あり)
同義語リスト:圧送車、コンクリート作業車、ブーム車、 配管車、スクイーズ車、ピストン車、工事車両、重機、建機、施工計画、圧送方式、コンクリート打設、アウトリガー、仮設計画
CADデータについて
バージョンはAutoCAD2004dwg・2004dxf・jwwです
本データは、メーカー公式データではありません。また特定の製品を完全に再現したものでもありません。キャビン(車両ヘッド)形状は、いすゞ、三菱ふそう各社の外形を参考にしていますが、荷台機構およびブーム形状は、汎用性を高めるため、特定の架装メーカーに依存しない形状の一般図としております。荷台部分は複数メーカーを参考にし平均的な寸法としましたが、ポンプ車は規格がなく製作会社により仕様が大きく異なります。生コン打設時の配置検討の際は、必ずご使用の車両の仕様をご確認ください。
このデータが良かったら、ぜひ一言でもコメントお願いします。とても励みになります

コメント
施工計画にリアリティーが加わって大満足です。すごいセンスです! 感謝申し上げます m_ _m
施工計画にご活用いただけて嬉しいです。またお忙しいなか、有難いコメントいただけて感謝いたします
以前から車両前面、後面図が計画図に欲しかったので助かります。ありがとうございます。
コメントありがとうございます。お役に立てたようで何よりです。やはり前面・後面図があるとイメージがつかみやすいですよね
1:1実物サイズで作っていただいているので
すごく使いやすいです。
全方位の姿図もあるのがうれしいです。
ありがとうございます。
1/1の全方位の姿図を喜んでいただけて何よりです。情報の無い車種は作成できませんでしたが、使いやすさを意識したので、そう言っていただけると励みになります
いつもお世話になっております。
施工計画書で利用させて頂いております。
有難うございます。
こちらこそ、いつもご利用いただきありがとうございます。施工計画書で活用していただけて嬉しいです。今後もお役に立てるデータを提供できるよう努めますので、よろしくお願いいたします
初めて利用させて頂きます。色々な車輛があり施工計画図作成に大変助かります。今後もまた利用させて頂けたら幸いです。これからも宜しくお願い致します。
初めてのご利用、そして温かいコメントをありがとうございます。施工計画にお役立ていただけたとのことで嬉しく思います
こちらこそ、今後ともどうぞよろしくお願いいたします。何かご要望などあれば、いつでもお気軽にお知らせください
どうもありがとうございました。
大変助かりました。
これからもよろしくお願いします。
嬉しかったです。
この度は誠にありがとうございました。温かいコメントいただき嬉しいです。今後ともどうぞよろしくお願い申し上げます
ありがとうございます!助かりました\(^o^)/
ご利用いただき誠にありがとうございます。今後もぜひCAD素材.comをよろしくお願いいたします
ありがとうございます!
素敵な図面ができました。
図面のクオリティ向上のお役に立てたようで何よりです。今後もCAD素材.comをよろしくお願いいたします
大変助かりました…施工図書くのに使用させていただきます
ご利用いただきありがとうございます。今後もCAD素材.comをよろしくお願いいたします
JWWのデータがあるのがとてもいいです
ありがとうございます
ご利用いただき誠にありがとうございます。jwデータは需要が高いので揃えています。今後もCAD素材.comをよろしくお願いいたします
施工計画図作成に利用させていただきます。
ありがとうございます(__)
施工計画にご利用いただきありがとうございます。今後もCAD素材.comをよろしくお願いいたします